T
O
S
E
N

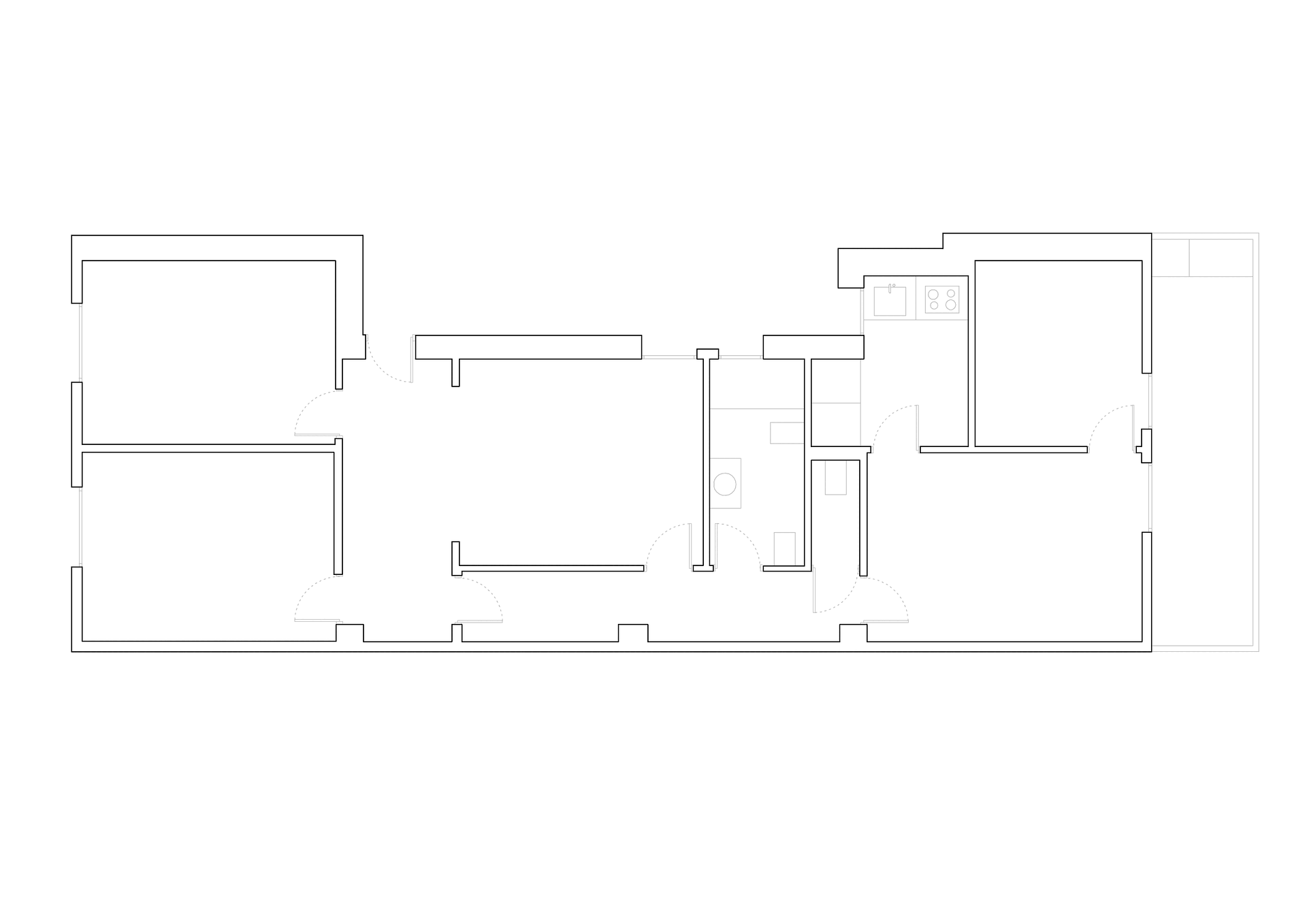
Este proyecto partía de un apartamento con un acceso desde la zona de noche y un amplio distribuidor que conducía a la zona de día.
La intervención propuso invertir esta lógica, otorgando protagonismo a un gran espacio de día con mayor luminosidad y una cocina abierta que articula la vida social.
La cocina también se trasladó a una nueva ubicación dentro de la vivienda, ganando amplitud y extensión.
Se incorporaron dos baños completos. Todo el proyecto se desarrolló priorizando la funcionalidad y la claridad espacial.

cocina | salón




día___________________________noche

