T
O
S
E
N

El proyecto se desarrolla a partir de un sistema de fabricación modular, basado en módulos de 4x4 metros, lo que permite una construcción flexible y eficiente.
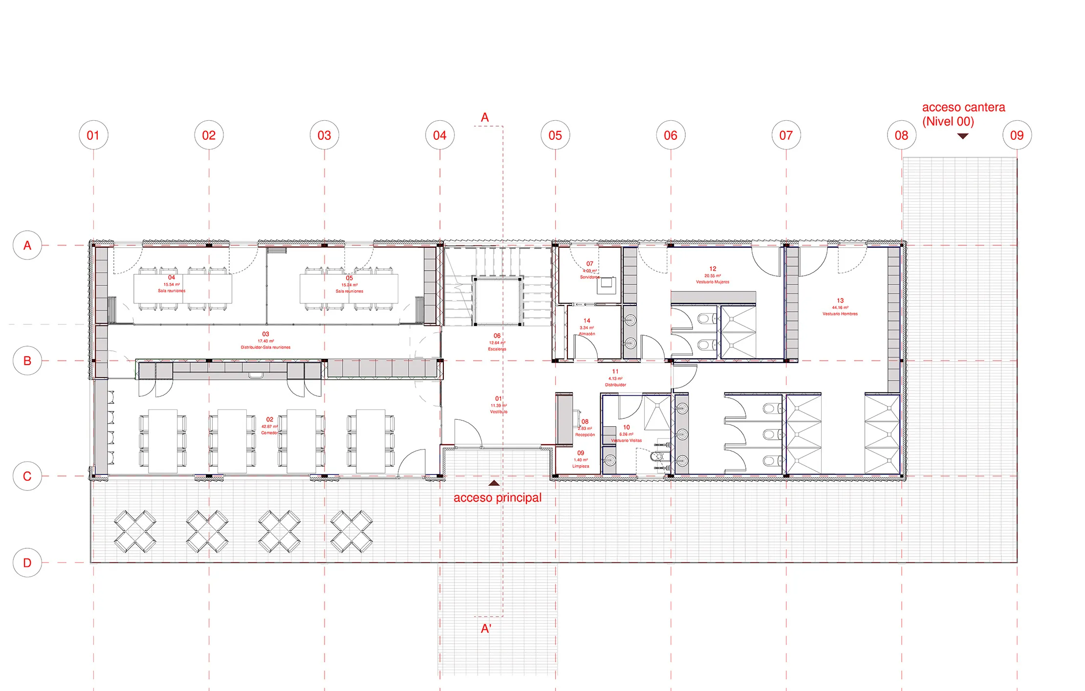
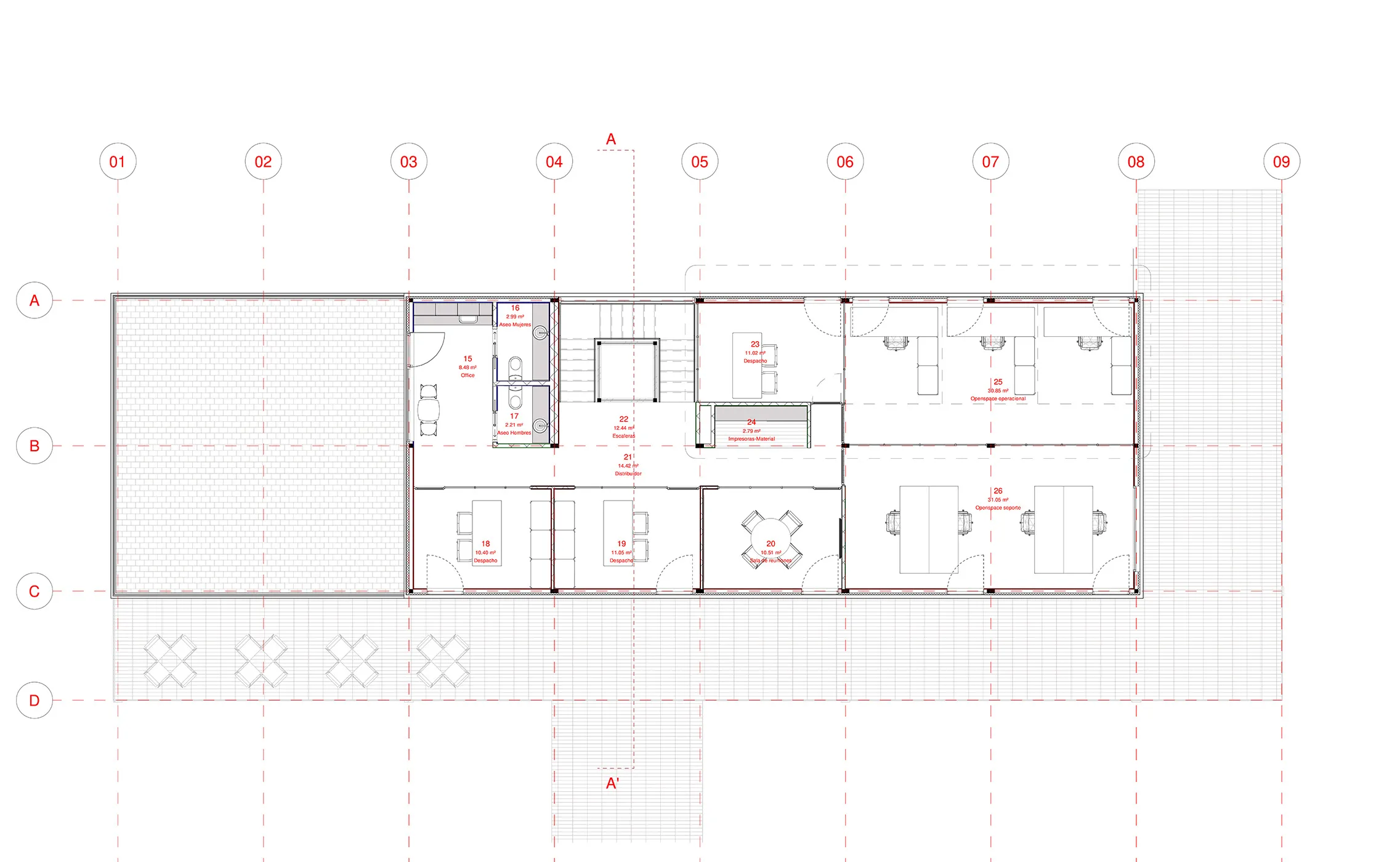
El edificio se organiza en dos plantas con una retícula de 7x3 módulos.
En la planta baja, el edificio ocupa todo el perímetro, mientras que en la planta primera se retranquean dos módulos, liberando vistas al entorno natural y generando un espacio exterior para la zona de oficina. El acceso principal se encuentra en la fachada norte, permitiendo que el edificio funcione en dos escenarios: uno con oficinas anexas a la fábrica y otro sobrevolando la ladera, adaptándose a diferentes contextos.


El edificio se divide en tres áreas principales: área general, de ocupación habitual y esporádica. La planta baja alberga la zona general, con vestuarios, comedor y salas de reuniones, diseñadas para separar las circulaciones y evitar la entrada de polvo en los espacios nobles. La planta primera se destina a la ocupación habitual, con oficinas que combinan espacios abiertos y cerrados, y despachos de uso privado.
La solución modular prefabricada facilita la personalización y adaptación del espacio a las necesidades del programa, permitiendo dividir los espacios de oficina con elementos móviles para generar zonas más privadas o abiertas. Este enfoque modular mejora la eficiencia en la construcción, ya que se fabrica de manera estandarizada y se ensambla rápidamente in situ, lo que reduce costos y tiempos de construcción.








