T
O
S
E
N
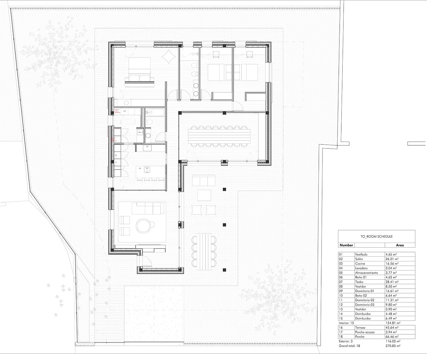
Las condiciones de la parcela, y las necesidades del cliente nos llevan a proyectar una vivienda que se resuelve en una única planta, y queda delimitada por un recorrido perimetral.
El edificio tiende a generar una forma de L que se abre a sur, y que ordena los espacios en una clara diferenciación entre zonas de día y de noche. Todas las estancias de día se vuelcan en torno al jardín principal.
El salón-cocina genera miradas cruzadas hacia los dos espacios de jardín norte-sur. La zona de noche queda orientada a este, recibiendo la primera luz del día, y mirando hacia un espacio exterior independiente de las zonas públicas de la vivienda.






